In architecture, all good projects are not started with bricks and beams, but rather with clarity, and that clarity is constructed using construction documents. These reports are the universal language that relates architects, engineers, contractors, and clients. They stipulate what is to be constructed, how it is going to be constructed, and the quality that will be used in its construction.
They are not only technical documents but when handled in a strategic manner, they are treated as a roadmap to guide the coordination of activities, minimize risks, and make sure every stakeholder is pulling towards one direction. Let’s explore how documentation leads to improved project management within the architectural field, backed by examples, best practices, and the expertise and multi-disciplinary experience of Strand Co.
The Foundation: What Are Construction Documents?
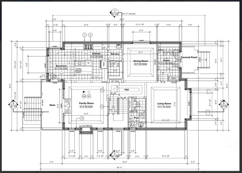
The construction documents are the package of drawings, specifications, and schedules containing the design intent and technical information for the people who are constructing the project. They consist of both construction drawings and materials lists and legal agreements, as well as safety and compliance documentation.
In architecture, there are practices of documentation, which are different in various industries. An example is an aircraft that attracts aerospace design or a drawing of excavators in mechanical engineering; all have a common principle of clarity, precision, and communication. Likewise, the variety of mechanical, electrical, and plumbing data contained in the hospital drawings will have to be large because of the nature of the healthcare facilities. Such sets of documentation are the interface between concept and construction, irrespective of the sector.

How Construction Documents Support Project Management
Communication and control are important in terms of project management in the architecture field where quality construction documents excel. Documentation eradicates ambiguity and sets all the project participants on the same page by clearly laying out scope, materials and timelines.
A well-organized building construction drawing set becomes a management tool that supports decision-making, scheduling, and budgeting. For example:
- Architects use documents to track design revisions.
- Contractors rely on them for procurement and sequencing.
- Owners use them to verify progress and compliance.
The outcome is a smooth project flow in which each stage of the project, that is schematic design, construction, and handover will be informed by proper documentation. Whether you are doing a residential complex or an infrastructure project such as a hospital or a transit hub, these documents are what provide accountability and quality.
Our documentation-based processes at Strand Co combine BIM information and team communication tools to reduce mistakes, manage stakeholders, and enhance efficiency of the delivery process.
Core Components of Effective Construction Documentation
Each construction document set contains multiple layers of information designed to cover every aspect of project delivery. Key components include:
- Construction Drawings: These are the visual representations that form the foundation of any construction project or engineering work. They include floor plans, elevations, sections, and details, which are often used alongside modern building drawing references to ensure consistency, accuracy, and compliance.
- Specifications: The drawings are illustrations, but the specifications are defining. They specify materials, performance, finishes, and ways of installation so that the project is designed and safe.
- Schedules and Diagrams: Schedules are used to give quantitative information, i.e. the number of doors and windows, equipment layouts, and finish materials. They become essential in the case of specialized work, such as the drawing of a hospital facility to coordinate medical gas supply and sterile areas.
- Legal and Administrative Documents: The project governance is outlined in the contracts, permits, and compliance documents. These are necessary to make sure the design meets the building codes and the legal requirements.
The elements are complementary thus forming a complete project report which reduces risks and augments efficiency.
Documentation as a Collaboration Tool
The challenge of ensuring coordination between several disciplines is one of the biggest challenges in managing an architectural project. This is where construction documents prove to be the best; they bring all teams together and keep them on the same set of guidelines.
When dealing with a large commercial project, such as building architecture drawing files, the structural, MEP, and landscape teams share them. When the disciplines have their independent information, then confusion and conflict are the outcomes. A single documentation, however, enables all people to be on the same wavelength.
This is a method that is practiced in other disciplines. Engineering uses the common drawing to express mechanical linkages, hydraulic systems, and safety tolerances that are all expressed using a common drawing. Equally, in the aviation industry, aircraft drawing packages are sets of structural, mechanical, and electrical information that allow consistency in thousands of parts.
Documentation can be easily viewed, commented on, and revised in a team, which forms part of teams, leading to less of delays, clashes, and better coordination.
Improving Project Efficiency and Reducing Rework
One of the major causes of project delays and overruns is a result of poor documentation. The lack of clarity in construction drawings or due to old-fashioned construction drawings may cause misinterpretation, which is costly to rework.
Good documentation, conversely, is documented in a high-quality manner, which offers clarity and reduces uncertainty. The line, symbol, and annotation in a building construction drawing contain necessary information regarding materials and dimensions. This accuracy allows project managers to foresee problems at an early stage, which avoids setbacks during the process.
In projects where there is a high level of complexity in the technical aspects, including drawing of hospitals with layered systems, or modern buildings drawing references that are sustainable, clear documentation would make sure that each update automatically propagates to all the teams.
The process at Strand Co focuses on the elements of review cycles, version, and BIM-connected cost and time information as it enables teams to make informed decisions in less time.

Best Practices for Managing Construction Documents
To ensure that construction documents effectively streamline project management, architects and contractors must adopt standardized practices.
- Maintain Consistent File Structure: Use clear naming conventions and folder hierarchies to make retrieval fast and intuitive.
- Implement Version Control: Track document changes to prevent outdated information from being used on-site.
- Conduct Regular Quality Checks: Every building construction drawing should be reviewed for accuracy before submission or distribution.
- Encourage Cross-Disciplinary Coordination: Hold documentation review sessions between design, structural, and MEP teams to resolve issues early.
- Leverage BIM and Cloud Platforms: Digitally integrated systems enable faster coordination and minimize manual errors.
At Strand Co, these schematic design best practices are embedded in every project phase. Our teams ensure that construction drawings are accurate, compliant, and fully aligned with design and site conditions.
Documentation Beyond Construction: Facility and Lifecycle Management
The value of accurate construction documents extends long after a project’s completion. Once the building is handed over, facility managers depend on documentation for maintenance, renovations, and upgrades.
As-built building architecture drawing sets record the final built conditions, helping future teams plan retrofits or expansions. Similarly, hospital drawings assist in maintaining complex systems such as HVAC, oxygen, and sterilization networks.
Even beyond architecture, documentation principles apply universally, whether managing aircraft drawing archives for fleet maintenance or using drawings of excavators for equipment service tracking.
In modern practice, digital document management ensures that every update, from energy efficiency reports to space utilization studies, is securely stored and easily retrievable throughout the building’s lifecycle.
How to Draw Construction Plans
Learning how to draw construction plans is a vital skill for architects, engineers, and designers aiming to create precise and compliant documentation. The process starts with understanding project requirements and translating them into detailed floor plans, elevations, and sections. Each line and symbol represents structural intent, materials, and dimensions that guide builders during execution. By combining accuracy, creativity, and modern drafting tools, professionals can produce construction drawings that ensure coordination, reduce rework, and improve communication among teams. At Strand Co, we emphasize precision and clarity in every plan to make sure ideas are transformed into reliable, buildable realities.
Conclusion
The true power of construction documents lies not just in their technical accuracy but in their ability to bring order, clarity, and unity to the complex world of architecture. They are the genes of project success, expectations definition, action direction, and accountability.
Since the process of drawing construction plans and doing high-stakes hospital drawings, or even relying on the references of building drawings of the time to get inspiration, all spheres depend on documentation to make the vision become a real construction.
To the architects, engineers, and clients, documentation is the vein that links creativity to the construction. It makes the workflow simpler, does not involve guesswork, and ensures that each line that will be drawn has something that corresponds to the real world.
We provide world-class construction drawings and documentation at Strand Co through a combination of precision, innovation, and collaboration. You have your plans to build a commercial establishment, a hospital, or state-of-the-art infrastructure. We guarantee that what you intend to achieve is achieved smoothly, and at a good time, at a reasonable cost.



